PLAN

プラン・性能・仕様

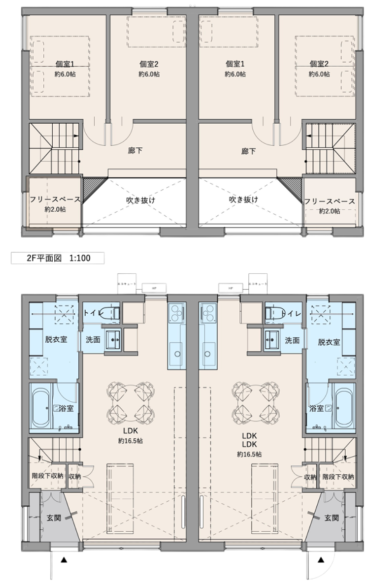
本物件は1住戸が2階以上の層を持つ
メゾネットタイプとなります。特徴は以下の通り。

プラン

◎2階建て構造

メゾネットは、通常、1階と2階に住居スペースが分かれている構造です。1階がリビングルームやキッチンなどの共用スペースであり、2階が寝室や個室として使われることが一般的です。

◎独立性とプライバシー

通常のアパートやマンションとは異なり、メゾネットは独立性が高く、住む人々にとってよりプライベートな空間を提供します。専用のエントランスがあり、他の住戸と接続されることがありません。

◎家具配置の柔軟性

2階建ての構造により、家具配置に柔軟性があります。例えば、1階にリビングスペースを配置し、2階に寝室を設けることで、生活空間を効果的に分割することができます。

◎一般的な用途

メゾネットは都市部や住宅密集地域で一般的に見られます。都市部では、より少ない床面積で多くの生活空間を提供することができるため、需要が高い傾向にあります。
現在メゾネットは、住宅のスペースの有効活用とプライバシーの確保を重視する人々にとって魅力的な選択肢となっています。

◎独立性とプライバシー

通常のアパートやマンションとは異なり、メゾネットは独立性が高く、住む人々にとってよりプライベートな空間を提供します。専用のエントランスがあり、他の住戸と接続されることがありません。


各部屋の見どころ

◎西棟(左)

二階カウンター越しに望む、富士山や丹沢山系
脱衣所に設けた室内洗濯物干しスペース
完全オリジナルの造作キッチンや造作洗面台
リビング開口部から眺める、外の風景と一体感のある植栽

◎東棟(右)

二階カウンター越しに望む、桜台公園の季節を感じる木々
脱衣所に設けた室内洗濯物干しスペース
完全オリジナルの造作キッチンや造作洗面台
リビング開口部から眺める、外の風景と一体感のある植栽


性能

UA値

0.21W/㎡・K


C値

0.2㎝/㎡


設計性能評価書取得

1.構造の安定に関すること
 耐震等級3/耐風等級2(許容応力度計算)

2.劣化の軽減に関すること
 劣化対策等級3

3.維持管理・更新への配慮に関すること
 維持管理対策等級3

4.温熱環境・エネルギー消費量に関すること
 断熱等級7/一次エネルギー消費量等級6
 BELS★★★★★★
 ZEH+


仕様

屋根断熱

ネオマフォーム90㎜+セルロースファイバー150㎜


壁断熱

セルロースファイバー105㎜
+外付加断熱ネオマフォーム90㎜(南面)or 45㎜(他面)


床断熱

ネオマフォーム90㎜+内付加断熱XPS3bA25㎜


開口部

smartwin 佐藤の窓(南面) UNILUX(他面)
超断熱ドア ユダ木工(玄関ドア)
外付けブラインド 南面1/2階 ヴァレーマ


換気

ダクトレス第一種全熱交換型 Air save


空調

壁掛けエアコン1台


構造

国産無垢金物工法 KS構法 JAS材全数グレーディング検査


給湯機

おひさまエコキュート370ℓ


太陽光

エコテクノルーフ7.4kW 各住戸3.7kW供給
HEMSによる自動制御


外壁

屋久島地杉張り


屋根

ガルバリウム鋼板葺き


内装床

北海道産 無垢クリ材


壁天井仕上げ

しっくいローラー塗り 一部天井 板張り


界壁

遮音防火用断熱材230㎜充填
硬質石膏ボード12.5㎜ 6枚張り 合計305㎜


CONTACT

来場予約

お問い合わせはこちらより

  • ・お問い合わせフォームに必要事項のご入力をして送信ボタンをクリックしてください。
  • ・メールアドレスは正しくご入力下さい(弊社より返信メールが届かない可能性があります。)
  • ・半角カナ入力は文字化けの原因になりますので、全角カナでご入力頂きますようお願いします。
  • ・【必須】項目は必ず入力してください。

    第一希望 日付
     
     
    第一希望 時間
    第二希望 日付
     
    第二希望 時間
    第三希望 日付
     
    第三希望 時間
    ご来場人数
    大人:
    子供:
    大人: 子供:
    お名前
    フリガナ
    メールアドレス
    電話番号
    その他ご意見ご要望

    プライバシーポリシー

    小泉木材株式会社(以下「当社」といいます)は、以下のとおり個人情報保護方針を定め、個人情報保護の仕組みを構築し、全従業員に個人情報保護の重要性の認識と取組みを徹底させることにより、個人情報の保護を推進いたします。

    個人情報の管理

    当社は、お客さまの個人情報を正確かつ最新の状態に保ち、個人情報への不正アクセス・紛失・破損・改ざん・漏洩などを防止するため、セキュリティシステムの維持・管理体制の整備・社員教育の徹底等の必要な措置を講じ、安全対策を実施し個人情報の厳重な管理を行ないます。

    個人情報の利用目的

    お客さまからお預かりした個人情報は、当社からのご連絡や業務のご案内やご質問に対する回答として、電子メールや資料のご送付に利用いたします。

    個人情報の第三者への開示・提供の禁止

    当社は、お客さまよりお預かりした個人情報を適切に管理し、次のいずれかに該当する場合を除き、個人情報を第三者に開示いたしません。
    ■お客さまの同意がある場合
    ■お客さまが希望されるサービスを行なうために当社が業務を委託する業者に対して開示する場合
    ■法令に基づき開示することが必要である場合

    クッキー(Cookie)の使用に関して

    当サイトでは、Cookieを使用しております。Cookieとはウェブサイトがお客様のコンピューターに送信するデータファイルのことです。お客様がウェブサイトを再訪問した際に、お客様のコンピューターからのアクセスであることを認識し、最適な情報で利用していただくようにするために使用しております。基本的に、Cookieの使用により個人を特定できる情報は取得いたしません。

    アクセス解析ツールに関して

    当サイトでは、Googleによるアクセス解析ツール「Googleアナリティクス」を利用しています。

    Googleアナリティクスはトラフィックデータの収集のためにCookieを使用しています。このトラフィックデータは匿名で収集されており、個人を特定するものではありません。この機能はCookieを無効にすることで収集を拒否することが出来ますので、お使いのブラウザの設定をご確認ください。

    個人情報の安全対策

    当社は、個人情報の正確性及び安全性確保のために、セキュリティに万全の対策を講じています。

    ご本人の照会

    お客さまがご本人の個人情報の照会・修正・削除などをご希望される場合には、ご本人であることを確認の上、対応させていただきます。

    法令、規範の遵守と見直し

    当社は、保有する個人情報に関して適用される日本の法令、その他規範を遵守するとともに、本ポリシーの内容を適宜見直し、その改善に努めます。

    お問い合せ

    当社の個人情報の取扱に関するお問い合せは下記までご連絡ください。


    小泉木材株式会社

    〒224-0057

    神奈川県横浜市都筑区川和町101番地




    TEL:045-931-2801(月〜土 8:00 - 17:00)




    MAIL:info@woodmeister.jp

    お電話でお問い合わせ